(6413_OSH) Продається рекреаційне приміщення Закарпатська область, Мукачівський район , Поляна, вулиця Духновича, 209

2 950 000 $
ексклюзив
без коміссії
  • Кімнат: 5
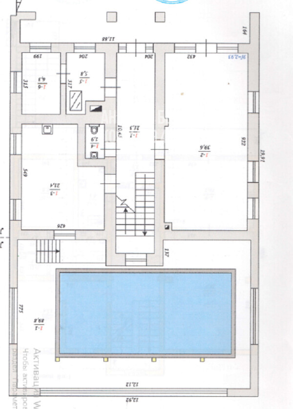
  • Площа: 1500 м2
  • Поверх/Поверховість: 3/3
  • Планування: вільне (open space)
  • Стан: євроремонт
  • Фонд: нежитловий

Продам готельно-оздоровчий комплекс у складі гірськолижного комплексу, ділянку Закарпаття. Продаю діючий бізнес під ключ, можлива продаж окремо готельного комплексу(1м250т) від гірськолижного комплексу (1м700т) , так само готові розглянути продаж долі в бізнесі для спільного розвитку курорту. План розвитку,(є проектна документація під концепцію подальшого розвитку схилу + розвиток паралельно з гірськолижною темою, бальнеологічного оздоровчого напрямку.) зараз обладнано та експлуатується на 6 га.

Готель 1000м2 : Ресторан (обладнана нова сучасна кухня, зал на 30 місць, тераса на 20 місць, На території є будівля під реконструкцію готель, ресторан 650м2, в наявності пункт прокату 121м2 (з обладнанням 100комплектів), чани, баня, сучасний гостьовий будинок 35м2 (2-6 осіб), альтанки, зона барбекю, мед.кабінет, приміщення для персоналу (у тому числі для проживання), складські приміщення. снігу, 120м3\година, ратрак, 7, гармат, 2 рушниці, зона ярмарку (павільйони), будівля охорони, пункти пропуску (турнікети, каси), є навчена злагоджена команда.


Мітки: ексклюзив, торг, без коміссії, терміново, пропозиція дня
Область:
Закарпатська область
Район:
Мукачівський район
Населений пункт:
Поляна
Вулиця:
вулиця Духновича
Будинок:
209
  • зупинка
  • супермаркет / магазин
  • школа
  • дитсадок
  • зелена зона
  • водойма
  • лікарня / поліклініка
  • паркінг
  • кафе / ресторан
  • Фонд: нежитловий
  • Призначення: приміщення для надання послуг, приміщення для громадського харчування, рекреаційне приміщення, приміщення (інше)
  • Вхід: фасадний
  • Рік будівництва: 2016
  • Вид здания: майновий комплекс
  •   10-12-2025 13:01
  • Поділитися:

Знайди свою нерухомість

Ціна ($):
Площа:
Поверх:     
Кімнат:            

Курс валют


USD - 41.5 грн
Продажа квартир в Киеве на R24.ua  Портал нерухомостi Realt.ua: купити квартиру в Києві Сайт нерухомості Nedviga-pro - операції з нерухомістю продаж квартир в Києві

Контакти

Підписка

Підпишіться, щоб отримувати останні новини

Вы успішно підписані!
Такій користувач вже існує
;