(10720_ORH) Здається офіс Голосіївський район, проспект Голосіївський, 132, метро Виставковий центр

16 $ за м2 (+ комунальні)
  • Кімнат: 5
  • Площа: 450 м2
  • Поверх/Поверховість: 6/16
  • Планування: кабінетна система
  • Стан: євроремонт
  • Фонд: нежитловий

Здається офіс приміщення. Голосіївський район, проспект Голосіївський, 132, метро Виставковий центр

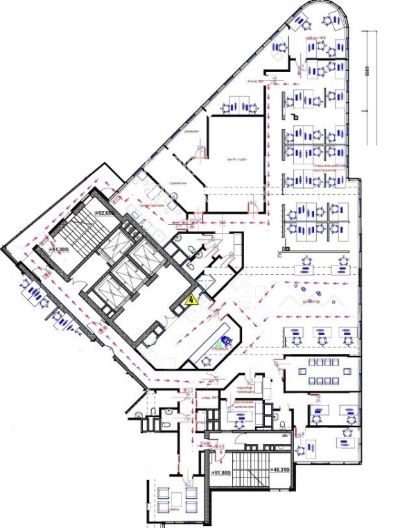
Оренда офісу 450 м.кв. в бізнес центрі РЕЛЕ в Голосіївському районі за адресою: проспект Голосіївський, 132, метро Виставковий центр.
В офісі зроблений сучасний ремонт, скляні та гіпсокартонні перегородки.

Великий опен спейс і кілька кабінетів, обладнана кухня, кілька санвузлів, система карткового доступу в офіс, встановлена система припливно-витяжної вентиляції та кондиціонування. 
Офіс пропонується з меблями. Великі панорамні вікна. 
Метро Виставковий центр - одна хвилина пішки. Доступ до приміщення 24/7. 
Ціна оренди: 16$/ кв.м + комунальні платежі

КЦ і арбітраж – ні!

Оплата: безготівковий розрахунок, перший місяць, гарантійний платіж і послуги АН одноразово 50%.


Мітки: терміново
Населений пункт:
Київ
Район нас. п.:
Голосіївський район
Масив:
масив Теремки-2
Вулиця:
проспект Голосіївський
Будинок:
132
Метро:
метро Виставковий центр
  • Фонд: нежитловий
  • Призначення: офіс, приміщення для надання послуг
  • Вхід: фасадний
  • Рік будівництва: 2015
  •   28-10-2025 10:24
  • Поділитися:

Знайди свою нерухомість

Ціна ($):
Площа:
Поверх:     
Кімнат:            

Курс валют


USD - 41.5 грн
Продажа квартир в Киеве на R24.ua  Портал нерухомостi Realt.ua: купити квартиру в Києві Сайт нерухомості Nedviga-pro - операції з нерухомістю продаж квартир в Києві

Контакти

Підписка

Підпишіться, щоб отримувати останні новини

Вы успішно підписані!
Такій користувач вже існує
;