(10731_ORH) Здається офіс Голосіївський район, проспект Голосіївський, 132, метро Виставковий центр

10 000 $ (+ комунальні)
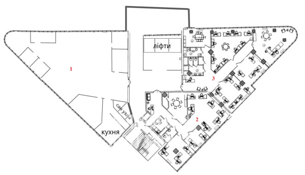
  • Кімнат: 5
  • Площа: 900 м2
  • Поверх/Поверховість: 3/16
  • Планування: кабінетна система
  • Стан: євроремонт
  • Фонд: нежитловий

Здається офіс приміщення. Голосіївський район, проспект Голосіївський, 132, метро Виставковий центр

Цілий поверх можливостей у серці Голосіївського району!

Пропонуємо в оренду ексклюзивний офісний простір площею 900 м² у сучасному Бізнес-Центрі «Реле», метро Виставковий центр - 5 хвилин.  Це не просто офіс — це цілий поверх, спроектований для ефективної роботи, приватності та комфорту вашої команди.

Простір розбитий на зручні блоки, які ідеально підходять для розміщення відділів, переговорних, лаунж-зон або робочих кабінетів. Гнучке планування дозволяє адаптувати офіс під будь-які бізнес-завдання — від IT-компанії до юридичного холдингу.

Локація: Голосіївський район — один з найзеленіших і динамічно розвиваючихся районів Києва. Зручна транспортна розв'язка, метро в пішій доступності, розвинена інфраструктура.

БЦ «Реле» — сучасна будівля з якісною інженерією, цілодобовою охороною, системою контролю доступу та парковкою.

Ідеально підійде для:

 - компанії від 50 до 100 співробітників;

- бізнесу, який цінує приватність (цілком закритий поверх);

- орендарів, яким важлива масштабованість і можливість зонування;

Не пропустіть можливість перевести свій бізнес на новий рівень.

Бізнес починається з правильного простору.

Ціна оренди: 10000$, можлива оренда окремих блоків.


Населений пункт:
Київ
Район нас. п.:
Голосіївський район
Масив:
масив Теремки-2
Вулиця:
проспект Голосіївський
Будинок:
132
Метро:
метро Виставковий центр
  • Фонд: нежитловий
  • Призначення: офіс, приміщення для надання послуг
  • Вхід: фасадний
  • Рік будівництва: 2015
  •   28-10-2025 10:24
  • Поділитися:

Знайди свою нерухомість

Ціна ($):
Площа:
Поверх:     
Кімнат:            

Курс валют


USD - 41.5 грн
Продажа квартир в Киеве на R24.ua  Портал нерухомостi Realt.ua: купити квартиру в Києві Сайт нерухомості Nedviga-pro - операції з нерухомістю продаж квартир в Києві

Контакти

Підписка

Підпишіться, щоб отримувати останні новини

Вы успішно підписані!
Такій користувач вже існує
;